Age-in-Place Bathroom Addition: Ivywood
Completed February 2010
It is always a pleasure for us to return to a home for another project, be it a 2nd, 3rd, 9th or 13th... It is especially wonderful when our clients have crossed over from being clients to being friends; and so it is on this project. Our clients love their home and are thinking about their future ability to stay there as they age. In this Ann Arbor addition, on Ivywood, we will add an age-in-place bathroom addition as well as a screened porch styled after a Japanese Tea Garden.
September 14, 2009
We will be creating a new screened porch coming off the back of the house.
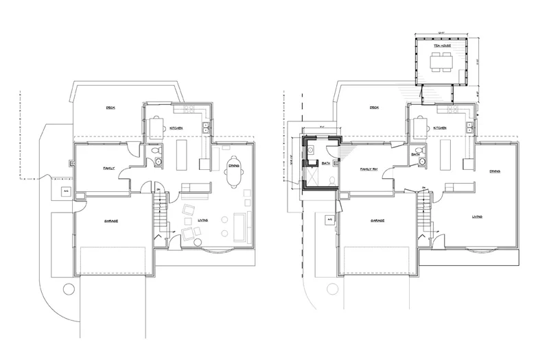
Also, an addition will be added off the side of the house to include a new age-in-place bathroom.
This is a design rendering we did showing what the view from
inside the porch will look like, overlooking the pond.
This plan shows the existing on the left, and the proposed on the right.
September 28, 2010
Block wall foundation with a crawl space. Note the brick ledge.
On the back of the house, the posts have been installed for the porch.
October 5, 2009
On the back of the house, the posts have been installed for the porch.
The addition foundation is complete, with a temporary ten to protect it from water.
October 16, 2009
The cedar decking is being installed.
With the floor in place, Anne puts up the first wall.
Gary is making a site visit, checking on the progress...
October 26, 2009
Anne and Stephen are installing the roof on the porch.
The crawlspace has been insulated, and access cut into the basement.
November 5, 2009
The new roof trusses will match the slope of the existing house.
The walls are all framed and sheathing is being put up.
November 13, 2009
The screened porch now has a completed roof.
Inside, you can see the clear finish, accenting the natural cedar.
November 15, 2009
Our happy clients, eager to make use of their new spaces.
November 30, 2009
The trapezoid windows are in place, as is the fiberglass insulation.
The monolith will have the shower hardware on this side,
and storage cubbies facing the sink on the back side.
December 18, 2009
Shingles are being installed on the bathroom roof.
Inside, drywall is up and being painted.
January 15, 2010
The ceiling of the porch is finished, with the trim designed to
evoke thoughts of tatami mats in a Japanese tea house.
In the bathroom, the tile and plumbing fixtures have been installed.
The sink is in place, along with the light fixtures.
A simple mirror will complete the look.
February 2, 2010
Here is the final porch, with screens to be installed in the spring.
The finished bathroom.
The shower area.
May 27, 2010
It's spring. This is the exterior view of the addition.
and the screened porch surrounded by spring greenery.
