Basement Remodel: Ann Arbor Hills
Completed March 2011
Ever wish that your basement would be so much more useful than just a lower level storage?
Check out our work blog as we convert this basement into a space that our clients will love!
In this project, we will take an existing, basic basement . . .
. . . and divide it up into much more useful and functional spaces.
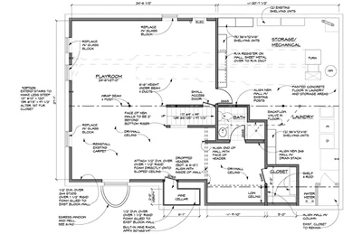
The final floor plan will have a playroom, a new egress window,
a guest sleeping area, a bathroom, storage, and laundry.
January 4, 2011
In this video, Gary, owner and lead designer of Rochman Design Build, walks through our process for
building the various basement wall assemblies that we used in this project.
January 5, 2011
Our lead carpenter Brian has begun the build-out of the walls. First 2″ rigid foam
was glued to the block walls and taped together. Then a full 2×4 wall is then framed in front to give room for adding new electrical and HVAC. Drywall is to be added later.
A section of the foundation wall has been removed. We will be installing a large window for better daylight in the basement and to provide a secondary means of egress in case of emergency.
The existing basement windows were in poor condition and did not function well. We replaced them with glass block, which has minimal maintenance requirements while still providing good light.
January 17, 2011
The interior wall framing is going up, including here at the bathroom.
The concrete floor has been opened up, allowing us to install the plumbing for the new bathroom.
January 24, 2011
Gary explains the value of an egress window, the code issues surrounding them and
then goes over our method of installation.
January 25, 2011
Here is Anne, preparing to spray foam insulation at the rim joists. She is wearing the appropriate protective gear: a tyvek suit, goggles, gloves and a respirator.
Anne is installing the foam along the rim. This will both add
insulation and provide an air seal around this critical area.
The new window has also been fully installed, as is the window
well on the exterior. This will provide light and safe egress.
February 9, 2011
The fiberglass shower stall. Other plumbing
fixtures will be installed further along in the project.
The drywall is going in. Note that the large duct is not covered. This is
to insure the finished height meets the minimum code requirements. We
will paint the duct the same color as the ceiling, allowing it to fade away.
Drywall installation continues in this view. The opening at the stairs
allows more light inside and prevents it from feeling too tight inside.
February 22, 2011
Painting has begun in the playroom and the bathroom.
March 10, 2011
Baseboard and trim are getting installed.
Doors are also hung. The shorter door on the right is cut down to fit under the staircase.
March 17, 2011
Project is complete :-)
The opening at the top of the stairs, inviting one to head down to the new space.
Carpet has been installed in the basement playroom, leaving it ready for furniture or tumbling mats :-)
The wine cellar with a vibrant paint color.
The new guest bathroom.
and guest shower stall.
Brand new storage racks in the mechanical room, over a freshly painted concrete floor.
Gary and Anne sitting with two important clients, who are
excited to start playing in their improved basement.
