Home Addition: Jewett Ave.
Completed October 2015
May 28, 2015
This 85 yr old stone cottage oozing personality and charm is about to become even more charming with an addition of a sunroom, master bath, and a complete renovation of the current bathroom.
June 3, 2015
This is how the house currently looks.
This is how the house WILL look once the addition is complete.
We will be matching the cobblestone around the base of the house
and installing a cedar shake siding to complement the historic charm.
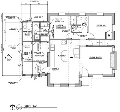
Here is the proposed floor plan, showing the addition to the west side of the house.
Work begins by removing stone at what will be a new doorway.
June 11, 2015
Foundation walls being installed.
Stone was stripped off the wall where a hallway will go.
Masons are installing piers for a new beam.
There will be a crawl space under the addition.
June 16, 2015
Framing is well under way :-)
Exterior walls are up and we are installing the hipped roof structure,
which will lay on top of the existing roof structure.
June 22, 2015
Framing complete, tarped and awaiting roof shingles.
Back corner of addition, showing the 15lb black felt building paper
that will be behind the cedar shakes.
The old stonework now a beautiful wall in the Sunroom.
June 26, 2015
Old roofing stripped off and new underlayment and shingles going in.
Roofing complete, a great change of color.
We are loving the roof lines too.
July 6, 2015
Finally breaking through from old house to new addition.
Looking into the new master closet and bath.
July 10, 2015
2×6 exterior walls, new bathtub in place.
What was an exterior window is now the doorway
between the Sunroon and the existing dining room.
The new roof framing is visible, laying on top of the old roof structure.
Close cell spray foam insulation is used in the low pitched roof for best energy performance.
July 17, 2015
Drywall being delivered into the house from a boom truck on the street.
July 24, 2015
Amazing how white drywall and windows help make a Sunroom so bright!
Drywall being installed.
Arches being formed to match the original house.
July 27, 2015
Exterior paint on the cedar shakes: Benjamin Moore, Amherst Gray.
August 5, 2015
Just a reminder of what this charming house looked like before...
And what it looks like now…
and no, we’re not done yet, but the work moved inside for a while :-)
Walls are painted a soft green, molding are painted white.
Porcelain tile 12” x 24” being installed on the floor.
August 14, 2015
Exposed foundations getting a thin stone veneer to compliment the cobblestone exterior of the original house.
We think that after the new stone and siding age a few years with sun and dirt,
the match between old home and the addition will be great.
August 19, 2015
White subway tile in a 4×12 size surround the bathtub.
We chose the Kohler Bellwether as it has a low front which allows easy entry for a shower.
New vanity and linen cabinetry getting installed in the master bath addition.
August 27, 2015
Final grading and topsoil. A rain garden is installed to handle some of the stormwater on the property.
The Sunroom is becoming the favorite room in the house!
New gutters being installed on the entire house.
September 2, 2015
Soild Red Oak strip flooring is installed in the addition. This is sanded in place and coated with an oil based finish, so that it matches the home’s existing hardwood floors.
September 10, 2015
Plumbing fixtures connected and the water is turned on in the Master Bath.
Ready for its first shower.
Also, the Sunroom is ready to enjoy as planned :-)
September 17, 2015
Now that the addition is complete and our client has a new working bathroom, we start a second project. The original single bathroom of the home is to get gutted and remodeled. Here are the before photos:
Old bath has plush carpeting, awkward tub/shower, and minimal storage.
September 24, 2015
The ‘Hall Bath’ is gutted back to the subfloor.
Space is borrowed from an old built-in unit to enlarge the old bath area for a walk-in shower.
Here the rough-in valve for the shower is seen.
Traditional plaster is used in this bathroom remodel, to seamlessly blend the old walls, the patched areas, and the new drywall.
The old built-in area is being reworked to a dresser niche in the bedroom.
October 13, 2015
Final photos of the master bath remodel- handsome, clean, elegant.
