Kitchen Remodel: Ember Way
Completed December 2013
September 24, 2013
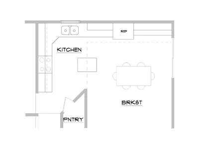
For this project, we will be removing the existing kitchen
and replacing it with a larger, higher-quality one.
There will be all new cabinetry, appliances, lighting and flooring.
The kitchen will be expanded all the way to the right wall.
We will replace this existing window and remove some of the soffit.
October 2, 2013
Demolition in the kitchen has just started…
….and in what seems like a flash, it has finished.
This new soffit provieds a “ceiling” for the cabinets to
bump up to, mirroring the look in the main kitchen.
October 20, 2013
New drywall on the ceiling and soffit, with initial paint.
New triangular soffit has also been drywall and painted.
October 29, 2013
New pre-finished hardwood floor installed.
The new kitchen area.
The hearth at the fireplace is to be new tile.
November 6, 2013
Kitchen cabinets are being installed. First bases…
…then wall cabinets.
Finally, cabinets down the wall to the patio door.
December 5, 2013
With countertops installed, the tile backsplash is next.
At the same time, new tile is being installed for the hearth at the fireplace.
December 11, 2013
The project is complete. The new kitchen is softer, more inviting and graceful, and ready for some great food with family and friends.
