Master Suite Remodel: Burns Park
Completed April 2012
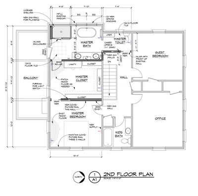
For this project, we were given a standard 4-bedroom, 2-bathroom second floor
and tasked with creating a luxurious master suite in the traditional style of the house.
January 16, 2012
To meet this goal, we are taking two of the bedrooms and one
of the bathrooms and combining them into the master suite.
This layout allows for a large walk-in closet, a separate
toilet area, while maintaining a good-sized master bedroom.
Finishes are critical to get the right look and feel. The shower will have white marble tile, with chair rail and crown details. Cabinets will be cherry, stained dark for contrast.
Fixtures are equally important. Above are the plumbing fixtures selected for the tub, the shower, and the sink faucets. The cross handles and white porcelainaccents speak to the desired traditional feel for the bathroom.
January 24, 2012
Demo has begun in the bedrooms. We’re removing the closets
separating them, clearing space for our new walls.
Demolition on a second floor can be tricky. Here, we built a chute to easily get trash to trailer, reducing the need to carry much through the existing finished spaces inside.
January 30, 2012
Plastic dust walls separate our work from the rest of the second floor.
The old walls are gone and the new walls are framed.
February 3, 2012
Routing the drain lines for the new shower and claw foot tub.
The subfloor was removed to do this to prevent any disruption to the finished space below.
Plenty of new electrical wires are being run for new outlets and switches.
Romex cables are used for our new wires: white coverings is for 14 gauge wires and yellow is
for 12 gauge. Copper piping is visible lower on the wall – new water supply lines for the sinks.
February 15, 2012
New drywall has been hung and is being taped.
This view is in the master closet looking into the master bath.
A new high window has been installed to keep daylight and privacy in the bathroom.
The green colored drywall is a moisture resistant board that we use in bathroom areas.
February 28, 2012
The master bath’s new marble tile floor.
An up-close shot. The white carrera marble tile has a beautiful gray veining,
giving it an elegant and classic look.
With the floor laid, the tile setters move to the shower, working up the walls.
The wall tile is installed over cement board, giving a far better support than using standard drywall.
March 5, 2012
Shower tile is nearly completed.
Up close, you can see the chair rail and marble corner shelves.
March 27, 2012
The dark stained closet cabinetry.
New pocket door between the bedroom, and closet areas. It is getting its final coat of paint.
April 3, 2012
Finished sink area.
Shower and clawfoot tub, with toilet room beyond.
New marble tiled shower with seat.
Inside of the shower, up close view of new faucetry.
