Renovation: Glazier Way
Completed October 2017
This 1950’s ranch in the King Elementary School neighborhood of Ann Arbor is looking to change with the times and reflects our clients’ current lifestyle. Just like we transition from one stage of life to another, it helps to have our home reflect those changes and resonate with our current stage. This is our 2nd project with our wonderful clients. We will be remodeling and renovating two bedrooms and 2 bathrooms into one master suite plus a guest bath. Please follow this current work blog to see the changes as they happen.
May 8, 2017
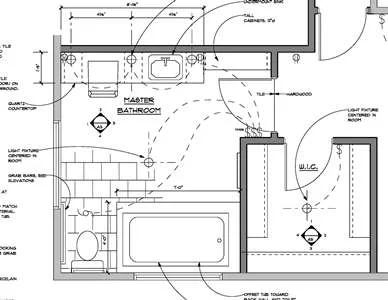
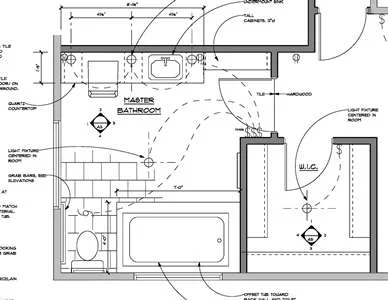
These are the sketches for the master bath
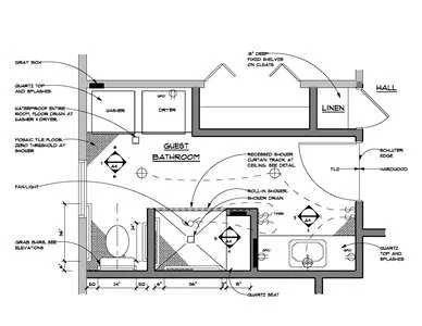
and these are for the guest bathroom
May 16, 2017
The first thing we did at this project was replace the windows.
The new windows match replacements from our previous project with these clients.
These large, beautiful sliding glass doors frame the view at this oasis of calm inside the city.
The old doors had seals which had broken, and they were cloudy and difficult to operate.
June 6, 2017
Some of the balcony framing is rotten and needs to be replaced.
We are also replacing the railings here to open the views.
These are before pictures of the bathrooms.
The new bathrooms will be brighter and more accessible, perfect for aging-in-place.
June 13, 2017
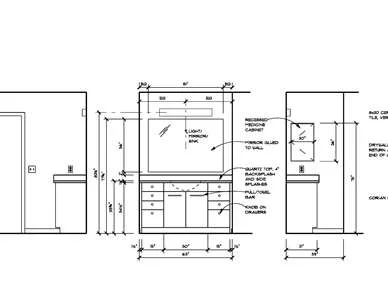
Our lead carpenter has made quick work of demolishing the rooms and getting them ready for new layouts and finishes. This wall will be the new Master Bathroom vanity cabinets.
Some of these walls hold up the ceiling framing, and they will remain. The rest will go, and be reconfigured to create the Master Bedroom Suite.
June 21, 2017
This is a before picture of the entry and the stairs to the lower level.
We have removed the wood paneling and wrought iron railings.
Temporary doors to adjacent spaces help control dust.
This is a view to the basement from the first floor.
Plywood subfloor at both bathrooms had water damage and had to be replaced.
June 28, 2017
The rough framing for the new room layout is finished. Our carpenter places blocking in the wall now, which will allow him to secure accessories and grab bars more easily in the future.
This photo shows the shower, with a zero-clearance floor.
July 5, 2017
Rough plumbing and electrical are being installed at the new bathrooms.
The plumbing inspector will test the system for pressure (leaks).
Inspections passed. Up next…drywall.
July 18, 2017
While other work has been going on inside this house,
our carpenter has been replacing the railings at the second floor balcony.
A few of the framing pieces had to be replaced,
but mostly we worked with the existing conditions and post layout.
The thin round balusters, painted black, allow a better view to the lush back yard, than the previous boards.
July 31, 2017
The drywall crew has come and gone. All the joints are taped and mudded.
The green board at the shower resists moisture.
A first coat of paint goes on the walls before cabinets and trim are installed.
August 7, 2017
This is a view down the hall of the bedroom wing, just after drywall and just before paint.
A first coat of paint goes up, and the color intensity went down, but not for all the rooms.
Bright colors create the backdrop for this bedroom. Our artistic client will layer the colors and build interest with paint, pictures, fabrics and materials.
Tile at the bathrooms is starting. A waterproof membrane is applied at the shower, and the seams are sealed. Because there is no shower curb, we are waterproofing the entire room.
The Durock cement board inside the shower is painted with a waterproof coating.
Tile installers begin to plan the layout for the natural stone mosaic tile.
August 15, 2017
Tile is installed on the floor and at the tub surround.
Plumbing valves require access, and an access panel is created in the tile.
We are ready for countertops to be fabricated. When the finished plumbing is installed, the access panel will be secured in place, and will be barely visible.
August 22, 2017
New tongue and groove oak flooring is toothed into the existing floor and installed at some new areas.
Floors are sanded and finished throughout this wing of the house.
And they look great!
August 31, 2017
This stone mosaic floor has a basket weave pattern.
It will be grouted soon and finishes will follow, quickly.
Once the floors were completed, the cabinets are set…
…and the counters and installed.
The shower walls are finished.
September 7, 2017
All the cabinets, countertops, fixtures and lighting have been installed in the master bathroom.
Zack installs Towel and grab bar hardware.
Glass tiles in a bright cobalt blue add a pop of color at the backsplash in the new master bath.
The tiles pick up flecks of cobalt blue from the counters.
September 14, 2017
These are the hardwood floors just before they are sanded and finished.
Closet system is complete :-)
September 20, 2017
The Entry has become a temporary staging area. We removed the wrought iron railings at the stairs to the lower level, and replaced them with solid walls.
Our favorite, local, cabinet maker built a bookcase cabinet with a cherry top.
New recessed cans with a directional trim will highlight artwork on this wall.
The floors have been cured for a few days and our clients can now move back into these spaces.
September 27, 2017
Finish plumbing and bath hardware have been installed.
washer & dryer are in, with a counter for folding...
because anything that helps the folding process is a good thing :-)
meanwhile on the outside, the exterior front entry is getting a make over as pooch watches from safely behind the door.
October 5, 2017
The cement mixer is here :-)
Pouring the cement for the front entry
Leveling the cement out before the tiles go on
October 11, 2017
back inside, the bathroom is basically done, just need to remove those last labels and tags... and we're all good.
The front entry stoop is done :-)
Our clients are happily back in their spaces.
